
大槻町針生のご紹介!
こんにちは、今井です!(^^)!
本日は大槻町字針生の
新築建売物件についてです!!!
当社ホームページの
更新情報にはすでに物件情報は
お伝えさせて頂きましたが、
改めて、ご紹介させて頂きます(^^♪
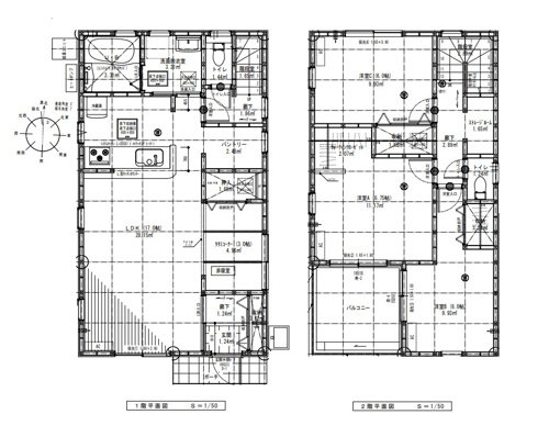
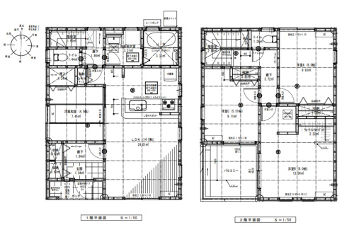
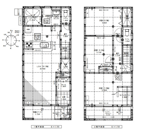
物件:大槻町字針生【全4棟】
※2号棟 お申込みあり
価格:1号棟 2,890万円
2号棟 2,790万円
3号棟 2,790万円
4号棟 2,630万円
学区:開成小・郡山第一中
※物件の写真をタッチすると情報が見れます★
3月1日 撮影
↓




★★アピールポイント★★
・南向きのため、陽当たりが良好です♪
・4号線まですぐ!アクセス良好です♪
・近隣に買い物施設や飲食店が
豊富に揃っているのでとても便利です♪
↓

完成は2021年 6月 予定です!!!
なかなか出ないエリアです!(^^)!
是非、お気軽にお問い合わせください♪







